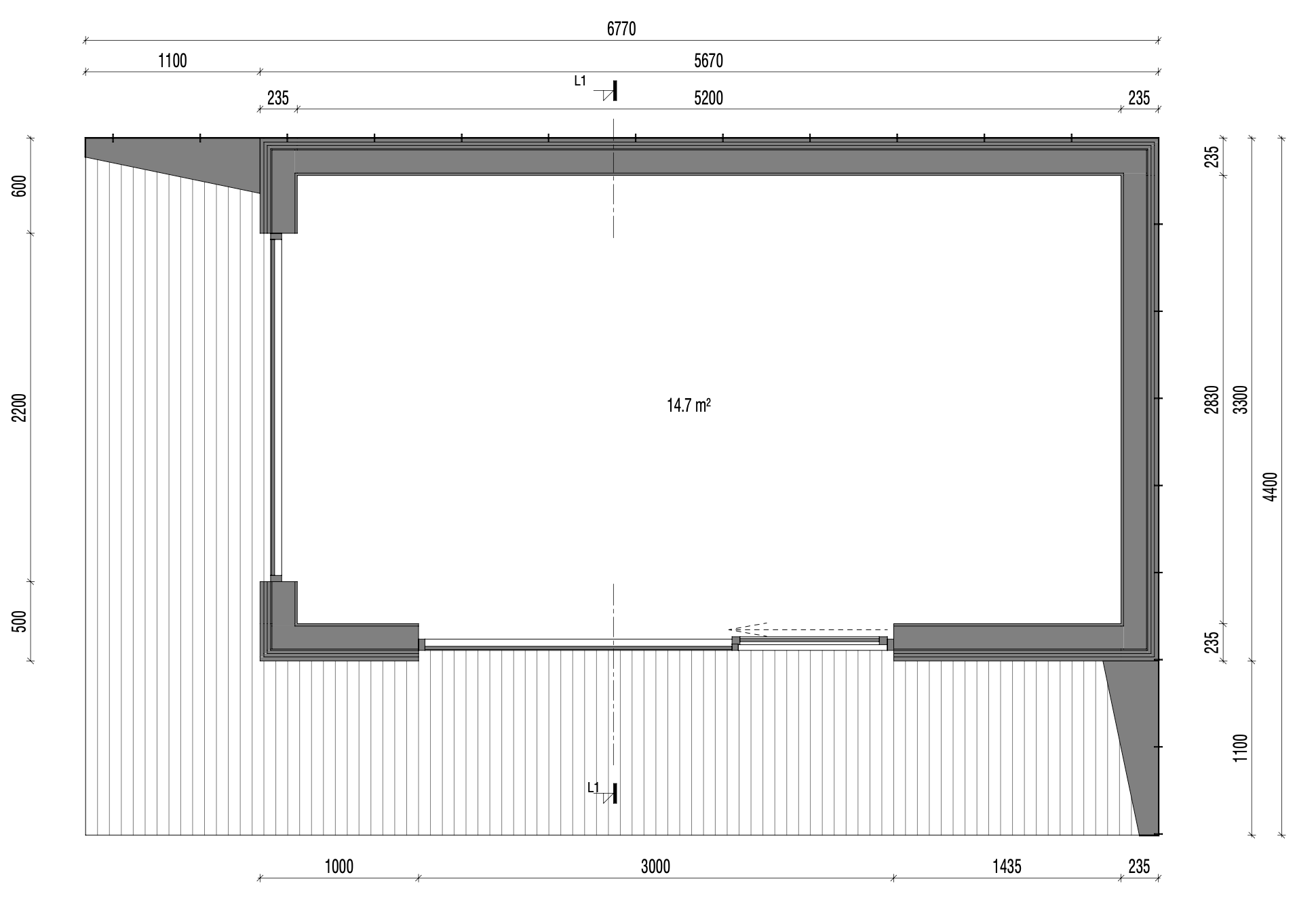
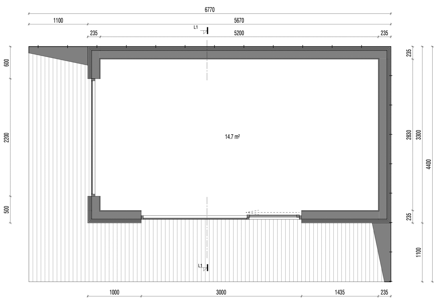
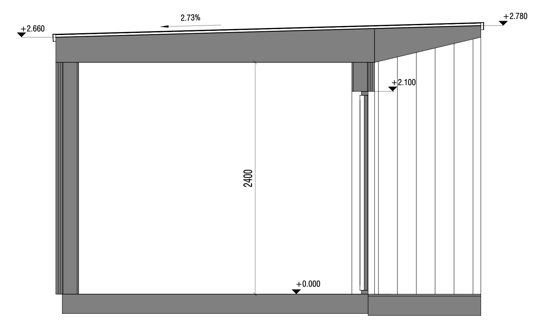
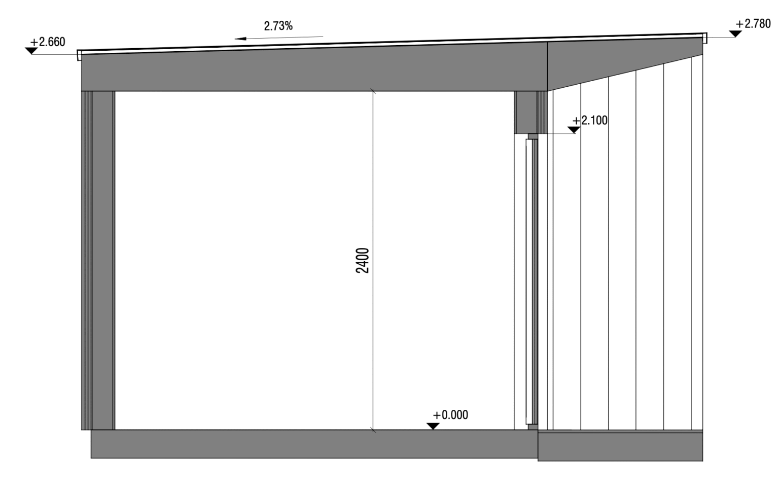
Majamudel 15m2
Aastaringseks kasutamiseks mõeldud energiatõhus moodulmaja. Saadaval nii täislahendusena, kui väljast valmis karbina.
Näidisplaanid
Miks valida Minumaja
Valmib kiiresti
Majad mõeldud Eesti kliimasse
Arhidektuurselt läbimõeldud planeeringud
Vali ise suurus ja eelarve
Garantii
Saada päring
Võta meiega ühendust
HAGS Prefab OÜ
Registrikood: 16475202
Tallinna kontor:
Pärnu mnt. 148
11317 Tallinn
Tel. (+372) 52 53 574
info@minumaja.ee

